
1 of 2
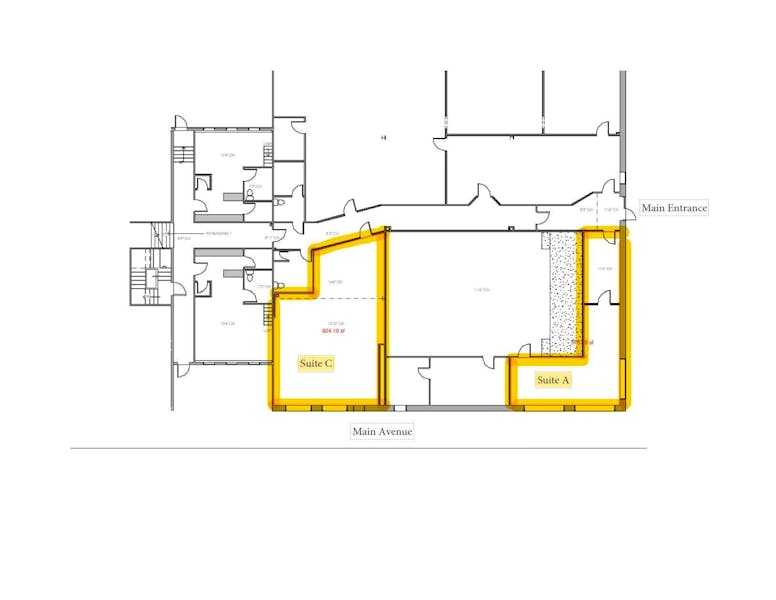
Suite A: 575 SF
Suite C: 925 SF
2 smaller suites with great natural light in phenomenal downtown location.
- Great location near downtown Fargo
- On site parking included
- Modified gross lease.
Fresh Deal Updated availability in the building recently. Book a tour before it's gone!
- Suite
- Size
- Monthly Rent
All-in Price - Offices
- Suite: 307 Main Avenue
- Size:2,000 SF
- Monthly Rent:$3,000 + Expenses
- Offices:
- Suite: 307 Main Avenue
- Size:575 SF
- Monthly Rent:$863 + Expenses
- Offices:
Listing courtesy of Brittaney VanderHagen, bvanderhagen@jbccommercial.com, JBC Commercial Real Estate